RIF.628 - Appartamento

Descrizione Immobile

40.000 €

Due Appartamenti in Vendita con Garage 

Proponiamo in vendita due appartamenti con rifiniture anni ‘70, situati in un edificio con posizione angolare tra Via Cacciatori e Via Curtatone. Nonostante lo stile dell’epoca, entrambi gli appartamenti si presentano in buone condizioni 

Caratteristiche dell’immobile:

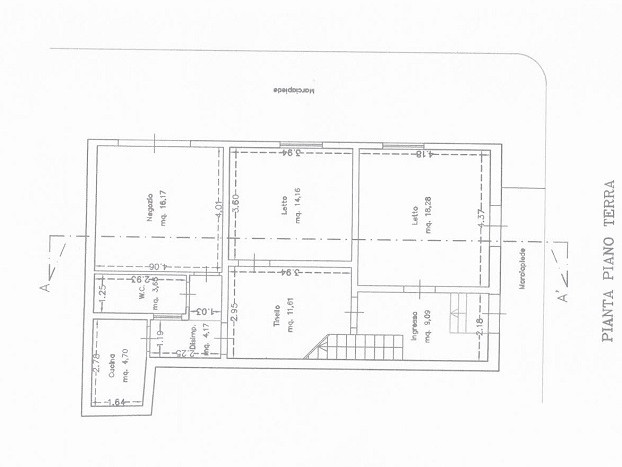
  • Piano terra:
     
    • Appartamento di 45 mq, ideale come abitazione o uso ufficio.
 
  • Garage di 30 mq, comodo per parcheggio o deposito. 

Prezzo 40.000

  • Piano primo:
     
    • Appartamento di 70 mq, luminoso e ben distribuito

Prezzo 50.000

 



Indirizzo Via Cacciatori delle Alpi
Cittá Vittoria
Stato IT
Provincia Ragusa
Postal code 97019
Quartiere

Dettagli Immobile

Ultimo aggiornamento 3 settimane fa
Classe energetica G
Piano P. Terra e P. Primo
Metri quadri 115
Locali 7 locali
Condizioni abitabile
Garage mq.30
Download datasheet